3

3 bed Semi-Detached - Sold Subject to Contract
Axeford, Chard Junction, Somerset, TA20
£300,000

A beautifully presented three-bedroom semi-rural home, extended to the ground floor and enjoying far-reaching views across open fields to the front aspect.

The property is offered in excellent condition throughout and benefits from off-street parking for several vehicles.
The spacious entrance hall leads to a comfortable lounge featuring an attractive bay window and a charming multi-fuel stove, creating a warm and inviting living space.

The fitted kitchen opens seamlessly into the dining area, ideal for everyday living and entertaining, with the added convenience of a separate utility room. A cloakroom completes the ground floor accommodation.

To the rear, a versatile family room enjoys direct access to the garden, which has been designed with low maintenance in mind.
To the first floor, the main bedroom is a generous double with fitted wardrobes spanning one wall and a bay window framing delightful countryside views.

Bedroom two is also a well-proportioned double, again with fitted wardrobes and a built-in airing cupboard. Bedroom three is a single room, equally enjoying views across fields and countryside, and all bedrooms are served by a modern family bathroom.
Externally, a double width driveway provides ample off-street parking and leads to a side garden laid to paving, offering a private seating area, storage shed and external access to the kitchen.

The rear garden is mainly laid to artificial lawn with an additional paved entertaining area, providing an attractive yet easy-to-maintain outdoor space. A rear gate offers convenient access.

Further benefits include double glazing and gas central heating, making this an ideal home for those seeking countryside views combined with modern, practical living.

Tenure: Freehold
Council Tax Band: C
EPC Rating: D

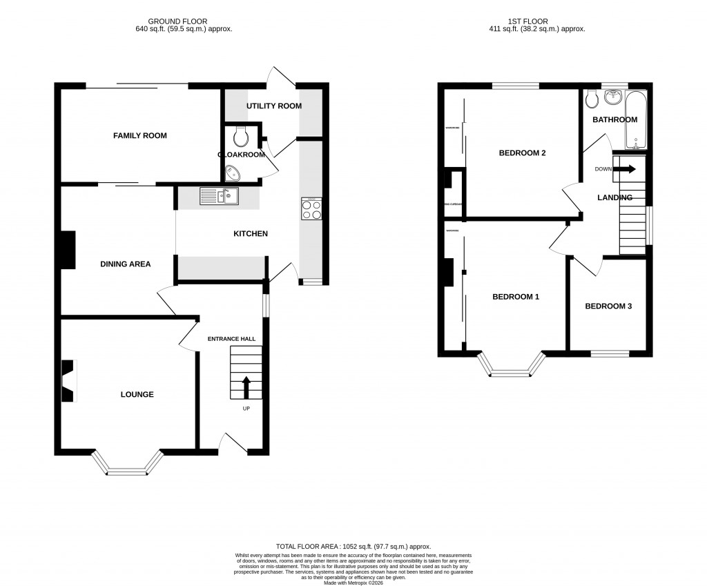
Accommodation comprises: Entrance hall, lounge, kitchen, dining area, utility room, garden room, cloakroom, three bedrooms and bathroom.

Entrance Hall    uPVC opaque double glazed main entrance door into entrance hall. Radiator, stairs rising to first floor, tiled flooring, understairs storage area with double glazed window to the side aspect. Wall mounted central heating boiler, coat hanging space. Doors to dining room and lounge.

Lounge 12'10" (3.92m) x 11'10" (3.61m) into bay. Feature fireplace with wooden mantle and inset stylish multi-fuel burner, double glazed bay window to the front aspect. Radiator and television point.

Dining Area 11'4" (3.46m) x 11'5" (3.47m) into recess. Fitted storage cupboards, radiator, double glazed sliding doors to family room and opening through to kitchen.

Kitchen 7'2" (2.19m) x 8'2" (2.50m) widening to 11'9" (3.58m) irregular shape. Fitted with a selection of modern wall and base units set beneath worktops with inset one and a half bowl sink and drainer. Space and plumbing for dishwasher, space for fridge freezer, space for cooker with hood over, pull out larder. Spotlights, tiled splash backs and wall mounted electric radiator. Window to rear aspect, double glazed window and door out to front aspect. Doors to cloakroom and utility room.

Utility Room 7'11" (2.42m) x 5'1" (1.56m) narrowing to 3'3" (1.0m). Worktops with built-in storage. Space and plumbing for stacked washing machine and tumble dryer. Spotlights and opaque double glazed door out to rear garden.

Cloakroom    Two-piece suite comprising low-level W.C. and corner wall mounted wash hand basin with vanity unit under. Tiled splashbacks, wall mounted electric radiator and opaque double glazed window to the rear aspect.

Family Room 13'5" x 8'4" (4.1m x 2.54m). Spotlights, radiator and double glazed sliding doors out to rear garden.

First Floor Landing    Access to roof void, double glazed window to the side aspect and doors to all principal rooms.

Bedroom One 13'7" (4.14m) x 11' (3.36m) including wardrobes. Fitted wardrobes along one entire wall, radiator and double glazed bay window with views across fields and countryside to the front aspect.

Bedroom Two 11'9" (3.58m) x 11'5" (3.47m) including wardrobes. Fitted wardrobes, further built-in airing cupboard with tank and slatted shelving. Radiator and double glazed window to the rear aspect.

Bedroom Three 8'2" x 7' (2.5m x 2.13m). Radiator and double glazed window to the front aspect with views across fields and countryside to the front aspect.

Bathroom    Fitted with a modern three-piece suite comprising panelled bath with electric shower and screen over, inset wash hand basin with storage under and back-to-wall W.C. Spotlights, radiator, extractor and opaque double glazed window to the rear aspect.

Front    The front garden features a large double width driveway made up of concrete and brick paving, with steps up to a further paved seating area enjoy the views across fields and countryside whilst giving access to the main entrance door. A wooden gate opens into a side garden enjoying a good degree of privacy. Laid to paving providing an nice entertaining area with access to wooden storage shed and door into kitchen. Outside tap.

Rear    The rear is laid to a low maintenance design with a paved seating area continuing on to an artificial garden with a wooden storage shed. A gate provides rear access. Outside tap.

Property Information    Services
Mains gas, water, electric and drainage.

Broadband and mobile coverage
Superfast Broadband is available in this area and mobile signal should be available from four major providers outdoors and two major providers indoors. Information supplied by ofcom.org.uk

Floorplans For Axeford, Chard Junction, Somerset, TA20
EPC For Axeford, Chard Junction, Somerset, TA20
Arrange a viewing for Axeford, Chard Junction, Somerset, TA20

For further details on this property please call us on:
01460 68222

Arrange Viewing