2

2 bed Terraced - For Sale
Stringfellow Close, Chard, Somerset, TA20
Offers Over £170,000

A beautifully refurbished two double bedroom ex-local authority home, offered to the market with no onward chain. Situated in a residential cul-de-sac, this spacious property has been recently cosmetically updated throughout, creating a neutral and comfortable home that"s ready to move straight into.To the ground floor, the accommodation comprises a bright and airy dual aspect lounge/diner, providing a generous living and entertaining space, along with a well-presented fitted kitchen offering ample storage and worktop space. Upstairs, there are two well-proportioned double bedrooms, both and a three-piece bathroom.The rear garden has been designed for low maintenance, laid fully to wooden decking – ideal for outdoor dining or relaxing with minimal upkeep. At the end of the cul-de-sac, there is a communal parking area available on a first-come, first-served basis.This property is perfectly suited to first-time buyers, investors, or those looking to downsize, and benefits from gas central heating and double glazing throughout.

Tenure: Freehold
Council Tax Band: B
EPC Rating: C

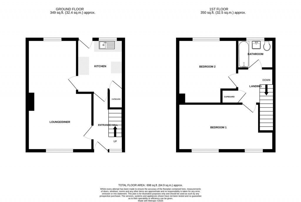
Accommodation comprises: Entrance hall, lounge/diner, kitchen, two bedrooms and bathroom.

Entrance Hall    Main entrance door with side window into entrance hall. Radiator, stairs rising to first floor. Door to lounge/diner and door to kitchen.

Lounge/Diner 21'2" (6.45m) x 11'9" (3.58m) narrowing to 8'11" (2.73m). A dual aspect room with windows to the front and rear. Two radiators and telephone point.

Kitchen 9'9" x 8'4" (2.97m x 2.54m). Fitted with wall and base units set beneath worktops with inset sink and drainer. Space for cooker and fridge. Space and plumbing for washing machine. Built-in storage cupboard understairs. Wall mounted central heating boiler. Double glazed door and window to the rear aspect. Doors to entrance hall and lounge/diner.

First Floor Landing    Access to roof void and built-in storage cupboard.

Bedroom One 18'1" (5.51m) narrowing to 14'10" (4.52m) x 8'7" (2.61m). Radiator and two double glazed windows to the front aspect.

Bedroom Two 11'11" (3.63m) x 10'10" (3.29m) maximum measurement. Radiator and double glazed window to the rear aspect.

Bathroom    Fitted with a three-piece suite comprising panelled bath with shower attachment and screen over, low-level W.C. and pedestal wash hand basin. Tiled splashbacks, radiator and opaque double glazed window to the rear aspect.

Front    The front is laid to stone chippings with pathway and steps up to the front door.

Rear    A step down from the rear enntrance door leads to a low maintenance rear garden laid to wooden decking and fencing.

Parking    A communal car park is allocated at the end of the cul-de-sac with spaces on a first come first serve basis.

Property Information    Services
Mains gas, water, electric and drainage.

Ultrafast and mobile coverage
Superfast Broadband is available in this area and mobile signal should be available from all four major providers outdoors and three major providers indoors. Information supplied by ofcom.org.uk

Floorplans For Stringfellow Close, Chard, Somerset, TA20
EPC For Stringfellow Close, Chard, Somerset, TA20
Arrange a viewing for Stringfellow Close, Chard, Somerset, TA20

For further details on this property please call us on:
01460 68222

Arrange Viewing