3

3 bed Terraced - Sold Subject to Contract
Park Terrace, Chard, Somerset, TA20
£260,000



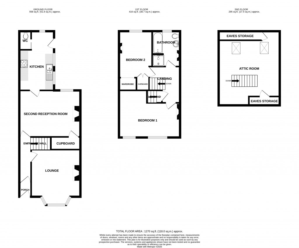
Entrance Porch    Opaque double glazed main entrance door into entrance porch. Attractive antique patterned floor tiles. Wooden opaque glazed door into entrance hall.

Entrance Hall    Exposed wooden flooring, radiator, stairs rising to first floor, telephone point. Doors to lounge and dining room.

Lounge 14'4" (4.38m) x 12'6" (3.81m) into bay window. Attractive double glazed bay window to front aspect, brick-built fireplace, radiator.

Dining Room 15'11" x 11'11" (4.85m x 3.63m). Exposed wooden flooring, brick-built fireplace, radiator, understairs storage cupboard. Double glazed window to the rear aspect. Door to kitchen.

Kitchen 10'4" (3.16m) extending to 15'9" (4.79m) x 8'9" (2.67m). Fitted with a range of matching wall and base units set beneath worktops with inset one and a half bowl sink and drainer. Inset gas hob with hood over, inset electric cooker, space and plumbing for washing machine, tumble dryer and dishwasher, space for fridge freezer. Radiator, tiled flooring. Two double glazed windows to the side aspect, double glazed door out to rear garden. Sliding door to W.C.

W.C.    Low-level W.C. Wall mounted central heating boiler. Tiled flooring.

First Floor Landing    Spotlights. Door and stairs leading up to attic room. Doors to all principal rooms.

Bedroom One 15'11" (4.86m) x 8'10" (2.68m) widening to 12' (3.65m). Feature antique fireplace, radiator and two double glazed windows to the front aspect.

Bedroom Two 12'4" (3.76m) x 8'3" (2.52m) narrowing to 7'7" (2.31m). Antique style feature fireplace, built in wardrobe, further storage cupboard over stairs. Radiator and double glazed window to the rear aspect.

Bathroom    Fitted with a four-piece suite comprising separate shower cubicle with mains shower, panelled bath, low-level W.C. and pedestal wash hand basin. Wood panelling, radiator, extractor and double glazed window to the rear aspect.

Attic Room    Attractive exposed red brick chimney. Spotlights, access to eaves storage, access to roof void and two Velux windows to the rear aspect.

Front    The front garden is laid to low maintenance enclosed by low-level walling and wrought iron railings with wrought iron gate giving access to a path leading to the main entrance door.

Rear    The rear garden is made up of a covered seating area with steps up to a long lawn area housing a variety of Apple trees and mature planting. A path leads through the garden giving access to a raised decked seating area with double doors into the garage. The path continues along the side of the garage to a wooden gate leading to a paved drive providing off street parking for two vehicles whilst giving access to the garage.

Garage 27'11" x 11'2" (8.5m x 3.4m). A much longer than average garage fitted with an electric roll-up electric door. Light, power, double glazed windows to the side and rear aspects. Double glazed double doors out to decked seating area.

Property Information    Services
Mains gas, electric, water and drainage.

Broadband and mobile coverage
Superfast Broadband is available in this area and mobile signal should be available from all four major providers outdoors and one major provider indoors. Information supplied by ofcom.org.uk

Building regulations
Please note the attic room does not have building regulation certification..

Agents Note
Please note this property is currently tenanted.

Floorplans For Park Terrace, Chard, Somerset, TA20
EPC For Park Terrace, Chard, Somerset, TA20
Arrange a viewing for Park Terrace, Chard, Somerset, TA20

For further details on this property please call us on:
01460 68222

Arrange Viewing