3

3 bed Terraced - For Sale
Southfields, Horton Cross, Ilminster, Somerset, TA19
£285,000

This charming three-bedroom Grade II listed character property is situated on the outskirts of the popular town of Ilminster, enjoying a semi-rural feel while remaining within easy reach of the A303 and M5 motorway. Dating back to the 18th century, the property beautifully combines period charm with modern comforts and offers deceptively spacious accommodation arranged over two floors.The house is rich in original features, including exposed ceiling beams, wooden doors, window seats and an attractive inglenook fireplace, all of which add to its warm and welcoming atmosphere. The property is well presented throughout, beginning with a modern fitted kitchen that provides ample storage and a range of integrated appliances. Adjacent to the kitchen is a useful utility and cloakroom, offering further space for appliances and housing the oil-fired central heating boiler.The living room is a particularly impressive space, centred around a striking inglenook fireplace with an inset wood-burning stove. This generous room also benefits from two double-glazed stone mullion windows with window seats, exposed ceiling beams and an attractive recessed area fitted with bespoke shelving, creating a characterful yet practical living environment.To the first floor, the main bedroom is a spacious dual-aspect room, featuring a charming window seat and a fitted storage cupboard over the stairs. Bedroom two is a light and airy double bedroom with two double-glazed windows to the side aspect, while the third bedroom, currently used as a home office, also benefits from a double-glazed window with a window seat. The family bathroom is well proportioned and fitted with a modern four-piece suite, most notably a large walk-in shower cubicle with a rainfall shower head.Outside, the property enjoys an enclosed garden laid to a combination of lawn and paving. There is also an additional courtyard area with a log store. A gate provides access to two allocated parking spaces and a single garage.This delightful period home is deceptively spacious and offers a rare opportunity to acquire a character property in a convenient yet peaceful location. Internal viewing is highly recommended to fully appreciate the charm, space and quality of accommodation on offer.

Double glazing and Oil central heating.

Tenure: Freehold
Council Tax Band: B
EPC Rating: E

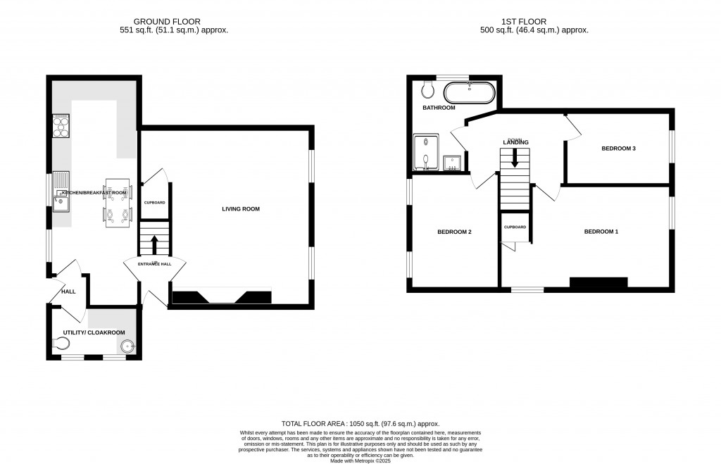
Accommodation comprises: Entrance hall, lounge, kitchen/diner, utility/cloakroom, three bedrooms and bathroom.

Situation    The small Hamlet of Horton Cross is situated just outside of the popular South Somerset market town of Ilminster. The 'Southfields' services are only a short walk from the property providing a 24hour petrol station, Greggs, Burger King and Travelodge.
A short drive will take you into Ilminster Town, providing a variety of day-to-day amenities and facilities with a host of independent shops, alongside supermarkets, dentist, doctors etc.

The property is conveniently located within easy access to the A303 and M5 Motorway perfect for those commuting to the larger towns of Taunton and Yeovil.
The County town of Taunton is only 10 miles approximately away with its comprehensive facilities, including shops, schools (within both the state and independent sectors), county cricket ground, race course and mainline station (London Paddington).
The popular Jurassic Coastline situated on the South Coast is only circa 18 miles.

Entrance Hall    Opaque double glazed main entrance door into entrance hall. Stairs rising to first floor. Doors to living room and kitchen/Breakfast Room.

Living Room 17'3" (5.27m) x 18'1" (5.50m) maximum measurement.. Attractive stone and brick-built Inglenook fireplace with inset woodburner. Exposed wooden ceiling beams, two stone mullion double glazed windows with window seats to the side aspect. Former doorway converted to useful storage alcove with wooden shelving, understairs storage cupboard. Television point and radiator.

Kitchen / Breakfast Room 23' x 9'1" (7m x 2.77m). Fitted with selection of stylish high gloss wall and base units set beneath worktops with inset ceramic one and a half bowl sink and drainer. Inset electric oven with five ring electric hob and hood over. Integrated slim-line dishwasher, space for fridge freezer. Spotlights, tiled flooring, tiled splashbacks. Recess with fitted wooden shelving. Two double glazed windows to the side aspect with slate window sills. Radiator. Door to entrance hall and door to rear hall.

Rear Hall    Opaque double glazed door out to garden. Further door to kitchen, door and step up to utility/cloakroom.

Utility/Cloakroom 8'10" x 5'1" (2.7m x 1.55m). Fitted with a base units set beneath worktop with inset circular sink. Space and plumbing for washing machine. Floor mounted oil central heating boiler. Low- level W.C. Tiled flooring, tiled splash backs and two opaque double glazed windows to the front aspect.

First Floor Landing    High ceilings with access to roof void. Radiator. Ornate metal balistraude. Doors to all principal rooms.

Bedroom One 14'1" x 10'7" (4.3m x 3.23m). Double glazed window with window seat and wooden shutters to the side aspect. Further double glazed window to the front aspect. Radiator, television point and built-in storage cupboard overstairs.

Bedroom Two 12'4" x 9'2" (3.76m x 2.8m). Two double glazed windows to the side aspect. Wooden flooring. Radiator and television point.

Bedroom Three 10'9" x 7'5" (3.28m x 2.26m). Double glazed window with window seat to the side aspect. Radiator and wood flooring.

Bathroom    Fitted with a stylish modern suite comprising large walk-in shower cubicle with mains shower, rainfall shower head and additional shower attachment. Panelled bath, Low-level W.C and inset wash hand basin with vanity unit under. Extensive tiling, spotlights, extractor, heated towel rail, mirror with built-in lighting. Double glazed window to the rear aspect.

Outside    The property is approached via a shared vehicular access that continues to the rear of the property. A single garage is situated within a block of garages with an allocated parkinjg space in front. There is a further parking space situated opposite the garaging alongside the garden.
A wooden gate gives access into the garden area which is made up of lawn with a paved seating area. A paved pathway leads to the rear door.

A further side courtyard gives access to the main entrance door and provides a further seating space if required and also houses a log store.

Property Information    Services
Mains water, electric and drainage. Oil central heating.

Broadband and mobile coverage
Ultrafast Broadband is available in this area and mobile signal should be available from four major providers outdoors and two major providers indoors. Information supplied by ofcom.org.uk

Access
Please note the neighbouring property has a pedestrian right of access across the courtyard situated at the front of the property.

Parking
There is an allocated space in front of the garage, with a further allocated space situated alongside the garden.

Floorplans For Southfields, Horton Cross, Ilminster, Somerset, TA19
EPC For Southfields, Horton Cross, Ilminster, Somerset, TA19
Arrange a viewing for Southfields, Horton Cross, Ilminster, Somerset, TA19

For further details on this property please call us on:
01460 68222

Arrange Viewing