4

4 bed Semi-Detached - For Sale
Touchstone Lane, Chard, Somerset, TA20
Offers Over £400,000

Situated in the highly favourable residential location of Touchstone Lane, Chard, this attractive four-bedroom semi-detached home offers generous accommodation, excellent parking and garaging, and enjoys an elevated position with views across the town and surrounding countryside.The property is presented in good condition throughout and is approached via mature front gardens which set the house back from the road. Internally, the accommodation is both spacious and well balanced. A particularly appealing 27ft lounge/diner forms the heart of the home, featuring a charming bay window overlooking the rear garden, an attractive fireplace with multi-fuel stove, and double doors opening directly onto the garden—ideal for both family living and entertaining.The fitted kitchen is well appointed with a comprehensive range of storage units and ample space for appliances, providing a practical and sociable workspace.To the first floor are three well-proportioned bedrooms, including a generous double bedroom with built-in wardrobe, two further bedrooms, and a family bathroom. The second floor has been converted to create an impressive main bedroom suite, complete with en-suite facilities and enjoying delightful views across Chard and the countryside beyond.Outside, the property occupies a long plot with established gardens to both the front and rear, incorporating lawned areas, patio seating and stone-chipped sections, offering a variety of spaces to relax and enjoy. A private road to the rear provides access to a detached garage, carport and additional off-road parking, along with a further concrete-panelled former garage currently utilised as a workshop.This is a superb opportunity to acquire a spacious family home in a sought-after location, combining generous accommodation, versatile outdoor space and excellent ancillary buildings, all within easy reach of the amenities of Chard.

Double glazing and gas central heating.

Tenure: Freehold   
EPC Rating: D   
Council Tax Band: C

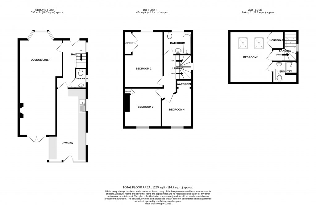
Accommodation comprises: Kitchen/Breakfast room, lounge/diner, cloakroom, hall, three bedrooms, bathroom, attic main bedroom with ensuite shower room.

Kitchen/Breakfast Room 18'3" (5.56m) x 9'10" (2.99m) narrowing to 8'1" (2.47m). Fitted with a selection of wall and base units set beneath worktops with inset sink and drainer. Space for cooker, space for fridge freezer, space and plumbing for washing machine, space for tumble dryer. Radiator, spotlights, under unit lighting, radiator. Double glazed windows to the front and side aspects.

Hall    Radiator, telephone point, stairs rising to first floor. Door out to rear aspect, double glazed window to the side aspect. Doors to all principal rooms.

Lounge/Diner 27' (8.23m) x 11'8" (3.55m) narrowing to 9'11" (3.03m) into bay window. Attractive fireplace with inset multi-fuel stove, fitted dresser with storage and shelving. Two radiators, television point. Double glazed bay window to the rear aspect and double glazed double doors opening out on to patio.

Cloakroom    Fitted with a two-piece suite comprising low-level W.C. and wall mounted wash hand basin. Radiator, tiled splashbacks, extractor and double glazed window to the side aspect.

First Floor Landing    Double glazed window to the side aspect and doors to all principal rooms.

Bedroom Two 13'6" (4.11m) x 10'5" (3.18m) including wardrobes. Built-in double wardrobe, radiator and double glazed window to the rear aspect with views across rooftops and countryside beyond.

Bedroom Three 10'6" (3.20m) x 10' (3.04m) into recess. Fitted storage cupboard with shelving. Radiator and double glazed window to the front aspect.

Bedroom Four 8'2" (2.48m) x 10'6" (3.20m) narrowing to 7'3" (2.20m). Fitted storage cupboard, radiator and double glazed window to the front aspect.

Bathroom    Fitted with a three-piece suite comprising panelled bath with mains shower and screen over, low-level W.C. and pedestal wash hand basin. Extractor, heated towel rail and opaque double glazed window to the rear aspect.

Second Floor Landing    Double glazed window to the side aspect, further Velux window to the rear aspect. Door to bedroom one.

Bedroom One 13'8" (4.16m) x 10'6" (3.19m) sloping ceilings. Radiator, fitted storage cupboard, access to eaves storage. Two Velux windows to the rear aspect with views across rooftops and countryside beyond. Door to ensuite shower room.

Ensuite Shower Room    Fitted with a three-piece suite comprising shower cubicle with mains shower, low-level W.C. and wall mounted wash hand basin. Tiled splashbacks, extractor and Velux window to the front aspect.

Outside    The front of the property is approached via a pedestrian gate giving access through to a pathway leading through the front garden to the main entrance door. The front garden is mainly laid to lawn with a selection of mature borders. A paved seating area overlooks and elevated feature pond with step down to the main entrance door. Paving continues along the side of the property leading to the long rear garden laid to areas of lawn, paving and stone chippings. At the rear of the garden there is a single garage, car port/storage area and a further concrete panelled single garage. An area of hardstanding to the side and front of the garages provides off street parking.

Garage 21' x 13' (6.4m x 3.96m). A pitched roof detached garage with double doors to the front, personal door to the side, two windows to the side aspect, light and power.

Concrete Panelled Garage    Used as a workshop with personal door out to carport.

Property Information    Services
Mains gas, water, drainage and electric.

Broadband and mobile coverage
Ultrafast Broadband is available in this area and mobile signal should be available from four major providers outdoors and two major providers indoors. Information supplied by ofcom.org.uk

Vehicular Access
There is a private lane that provides vehicular access to the garage and parking.

Floorplans For Touchstone Lane, Chard, Somerset, TA20
EPC For Touchstone Lane, Chard, Somerset, TA20
Arrange a viewing for Touchstone Lane, Chard, Somerset, TA20

For further details on this property please call us on:
01460 68222

Arrange Viewing