3

3 bed Semi-Detached - Sold Subject to Contract
Wyatt Way, Chard, Somerset, TA20
£215,000

A modern three bedroom semi-detached property with garden and off street parking, sold with the benefit of no onward chain.

The property is well presented and features a 18ft kitchen/diner with double doors out to the rear garden.
The main bedroom is also fitted with a double wardrobe and accompanied by an ensuite shower room.

A brick paved driveway to the side provides off street parking whilst giving access into the enclosed rear garden.

Double glazing and gas central heating.

Tenure: Freehold
EPC Rating: C
Council Tax Band: C

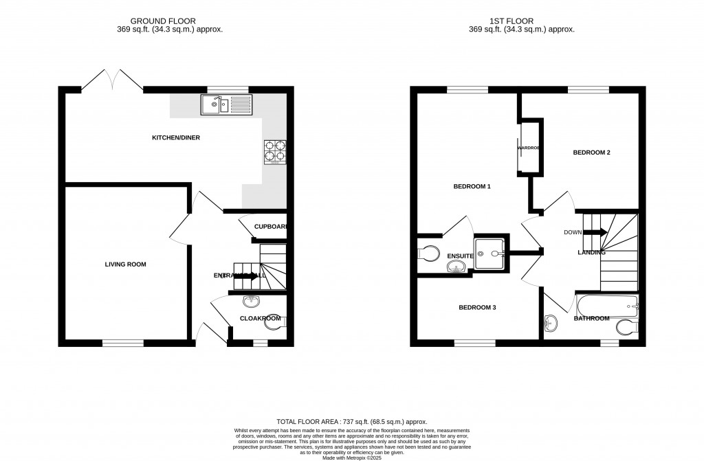
Accommodation comprises: entrance hall, cloakroom, lounge, kitchen/diner, main bedroom with ensuite shower room, two further bedrooms and bathroom.

Entrance Hall    Main entrance door into entrance hall. Radiator, stairs rising to first floor and under stairs storage cupboard. Doors to all principle rooms.

Lounge 12'8" x 9'6" (3.86m x 2.9m). Feature fireplace with inset electric fire, television point, telephone point and double glazed window to the front aspect.

Kitchen/Diner 18'3" x 7'6" (5.56m x 2.29m). Fitted with a selection of wall mounted wall and base units set beneath worktops with inset sink and drainer. Inset oven with gas hob and cooker hood over, space for fridge freezer, space and plumbing for washing machine, integrated dishwasher. Concealed wall mounted central heating boiler, tiled splash backs, radiator, tiled flooring. Double glazed double doors out to rear garden and further double glazed window to the rear aspect.

Cloakroom    Fitted with a two-piece suite comprising low-level W.C and pedestal wash hand basin. Tiled splash back, tiled flooring, radiator and opaque double glazed window to the front aspect.

First Floor Landing    Doors to all principle rooms.

Bedroom One 11'6" (3.51m) x 9'5" (2.86m) narrowing to 8'2" (2.49m) excluding wardrobe. Fitted double wardrobe, radiator and double glazed window to the rear aspect. Door to ensuite shower room.

Ensuite Shower Room    Three-piece suite comprising shower cubicle with mains shower, low-level W.C and wall mounted wash hand basin. Radiator, shaving point, extractor and radiator.

Bedroom Two 8'3" (2.52m) narrowing to 7'5" (2.25m) x 9'8" (2.95m). Radiator, access to roof void and double glazed window to the rear aspect.

Bedroom Three 9'5" (2.86m) x 7'2" (2.19m) narrowing to 5'5" (1.66m). Radiator and double glazed window to the front aspect.

Bathroom    Fitted with a three-piece suite comprising panelled bath with shower attachment, low-level W.C and pedestal wash hand basin. Tiled splash backs, radiator, extractor fan and opaque double glazed window to the front aspect.

Front    The front of the property is laid to low maintenance laid to stone chippings with a path to the main entrance door and railings. A driveway to the side provides off street parking with wooden gate into the rear garden.

Rear Garden    The rear garden is made up of a paved seating area with a further area laid to stone chippings. Wooden storage shed and outside tap. The whole is enclosed by wooden fencing with a wooden gate out to the driveway.

Property Information    Services
Main gas, electric, water and drainage.

Broadband and Mobile Coverage
Superfast Broadband is available in this area and mobile signal should be available indoors from three major providers and outdoors from all four major providers. Information supplied by ofcom.org.uk

Floorplans For Wyatt Way, Chard, Somerset, TA20
EPC For Wyatt Way, Chard, Somerset, TA20
Arrange a viewing for Wyatt Way, Chard, Somerset, TA20

For further details on this property please call us on:
01460 68222

Arrange Viewing