3

3 bed Terraced - Sold Subject to Contract
Clarkes Close, Chard, Somerset, TA20
£150,000

A three bedroom terraced home now in need of refurbishment throughout offered to the market with no onward chain.

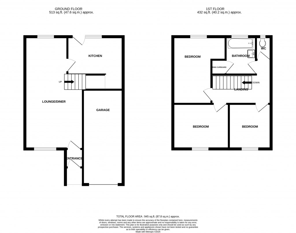
Entrance vestibule, lounge/diner, kitchen, three bedrooms and bathroom. Garage and driveway with garden to the rear aspect.

Tenure: Freehold
Council Tax band: B
EPC Rating: D

Entrance Vestibule    uPVC double glazed door and further door to:

Lounge/Diner 22'2" (6.75m) x 11'6" (3.51m) narrowing to 8'4" (2.55m). Windows to the front and rear aspect, radiator and stairs rising to first floor.

Kitchen 11' (3.35m) x 10'4" (3.15m) narrowing to 7'5" (2.27m). Fitted with a range of wall and base units with adjoining work top preparation surface and inset stainless steel sink with mixer tap over. Appliance spaces for cooker and washing machine, wall mounted gas central heating boiler. Open under stairs storage area, window to the rear aspect and door giving access to the garden.

First Floor Landing    Loft access and doors to all rooms.

Bedroom One 13'4" (4.07m) x 10'3" (3.12m) narrowing to 7'8" (2.33m). Window and radiator.

Bedroom Two 11'1" x 8'5" (3.38m x 2.57m). Window and radiator.

Bedroom Three 18'3" x 8'5" (5.56m x 2.57m). Window and radiator.

Bathroom    Featuring bath and wash hand basin. Built in airing cupboard housing tank and slatted shelving. Radiator and window.

W.C    W.C and window.

Garage 18'10" x 7'11" (5.74m x 2.41m). Up and over door.

Outside    Open planned garden to the front mainly laid to lawn with open porch leading to the front entrance door. Driveway providing off street parking. The rear garden is partly laid to patio and soil.

Property Information    Services
Mains gas, water, electric and drainage.

Broadband and mobile coverage
Ultrafast Broadband is available in this area and mobile signal should be available from all four major providers outdoors and all major providers indoors. Information supplied by ofcom.org.uk

Floorplans For Clarkes Close, Chard, Somerset, TA20
EPC For Clarkes Close, Chard, Somerset, TA20
Arrange a viewing for Clarkes Close, Chard, Somerset, TA20

For further details on this property please call us on:
01460 68222

Arrange Viewing