2

2 bed Apartment - Sold Subject to Contract
Stonechurch Court, Combe Street, Chard, Somerset, TA20
Guide Price £147,500

Offered to the market this bright and spacious two bedroom first floor apartment, ideally situated just a short walk from the town centre. Benefitting from its own private entrance, this well maintained property combines modern features with excellent convenience.

The apartment features two double bedrooms, fully fitted kitchen with integrated appliances, a modern fitted shower room, living and dining room with double aspect windows. It benefits from modern LED lighting for energy efficiency, motion sensitive lights through stairway and landing and a secure video entry system with intercom. Within easy access to shops, amenities and public transport it is an excellent choice for comfortable town living.

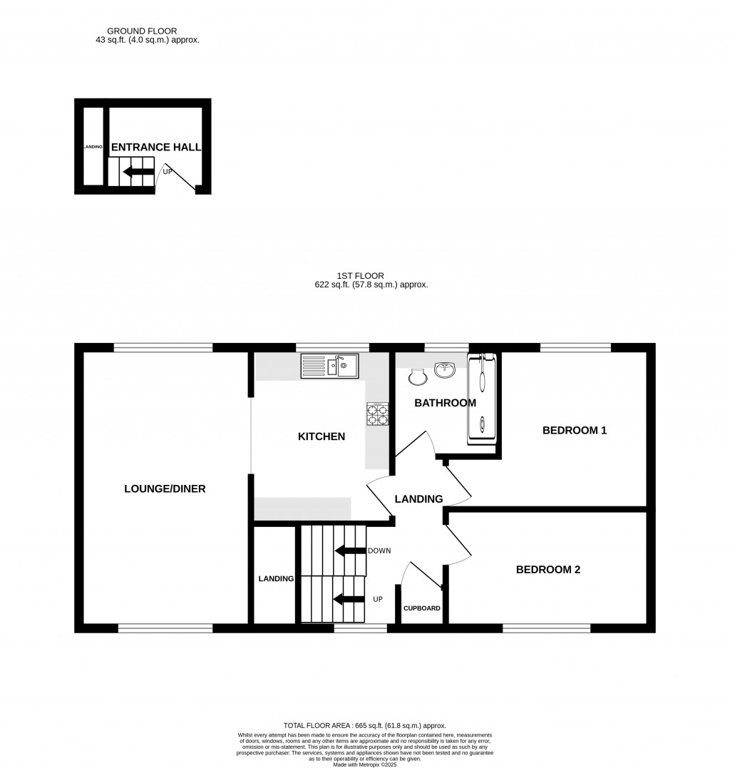
Accommodation comprises, entrance hall, stairway and landing, two double bedrooms, kitchen, living - dining room, shower room. Double glazing throughout and gas central heating.


Tenure: Share of Freehold
Council Tax Band: A
EPC Rating: B

Entrance Hall    Via a double glazed door to entrance hall with understairs storage area, radiator and stairs to first floor.

Landing    Front aspect double glazed window, storage cupboard with shelves, loft hatch access, doors to:

Kitchen 10'10" x 8'10" (3.3m x 2.7m). Rear aspect double glazed window, a range of base and wall mounted units with roll edge work top and tiled splash back, inset 1½ bowl ceramic sink with mixer tap, integrated appliances include Montpellier oven with 4 ring induction hob and extractor hood over, fridge freezer and washer/dryer, radiator. Open arch leading to:

Living / Dining Room 17'11" x 10'9" (5.46m x 3.28m). Double aspect room to the front and rear elevation with double glazed windows, x2 radiators.

Shower Room 6'6" x 6'1" (1.98m x 1.85m). Rear aspect double glazed window, built in vanity unit with wash hand basin and WC, vanity light with shaver socket, walk in shower with screen and tiled surround, heated towel rail.

Bedroom 1 12'9" x 10'1" (3.89m x 3.07m). Rear aspect double glazed window, radiator.

Bedroom 2 12'9" x 7'6" (3.89m x 2.29m). Front aspect double glazed window, radiator.

Property Information    Please note the 4 flats each own a ¼ share of the freehold. Each owner is a director of the Combe Street Flats (Chard) Limited and together set an annual service payment (currently £35pcm) to cover communal expenses including buildings insurance and external painting.

Services
Mains gas, water, electricity and drainage

Floorplans For Stonechurch Court, Combe Street, Chard, Somerset, TA20
Arrange a viewing for Stonechurch Court, Combe Street, Chard, Somerset, TA20

For further details on this property please call us on:
01460 68222

Arrange Viewing