2

2 bed Apartment - For Sale
Avishayes Road, Chard, Somerset, TA20
£90,000

A renovated two bedroom first floor flat with views over the park offered to the market with no onward chain. Modern fitted kitchen with built-in appliances, open plan living area, two bedrooms and a modern fitted bathroom.

A perfect first time buyers property or investment.

Tenure: Leasehold
Council Tax Band: A
EPC Rating: D

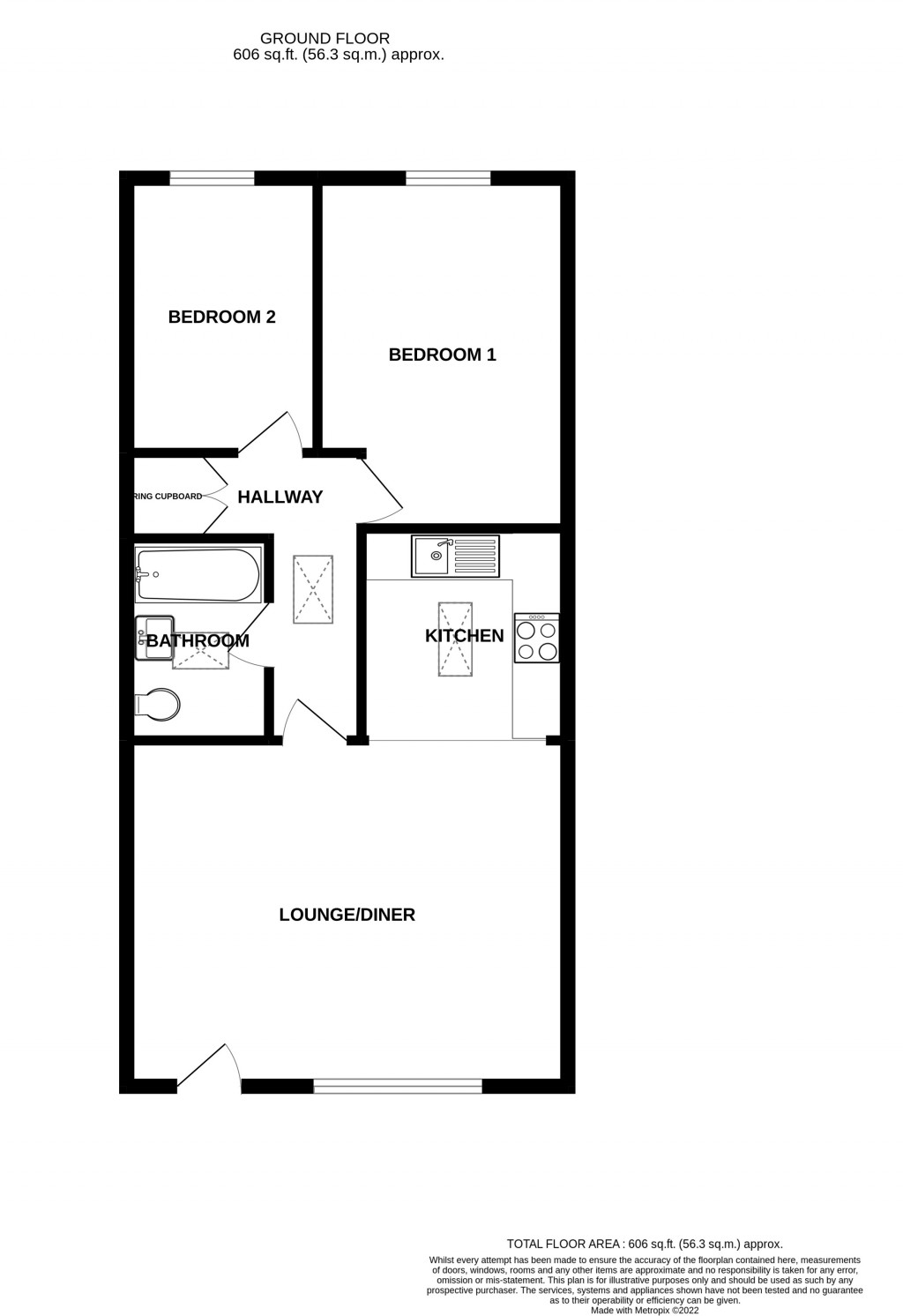
Lounge/Diner 17'2" x 13'6" (5.23m x 4.11m). uPVC double glazed front entrance door and uPVC double glazed window. Laminate flooring, inset spotlights and electric heaters.

Kitchen 8'2" x 7'11" (2.5m x 2.41m). Fitted with a range of modern high gloss wall and base units with adjoining work top preparation surface and inset stainless steel sink and drainer with mixer tap over complemented by tiled splash backs. Fitted oven and hob with cooker hood over. Fitted fridge/freezer and washing machine. Skylight and spotlights.

Inner Hallway    Electric heater, built in airing cupboard with tank, inset spotlights and skylight.

Bedroom One 13'9" (4.19m) x 9'8" (2.95m) narrowing to 7'11" (2.42m). uPVC double glazed window and electric heater.

Bedroom Two 10'7" x 7' (3.23m x 2.13m). uPVC double glazed window and electric heater.

Bathroom    Benefiting a three piece suite consisting of a panelled bath, pedestal wash hand basin and low level W.C. Ceramic tiled splash backs, inset spotlights and skylight.

Property Information    Services

Mains electric, drainage, water.

Broadband and Mobile Coverage
Superfast Broadband is available in this area and mobile signal should be available outdoors from all four major providers and limited access indoors from two of the four major providers. Information supplied by ofcom.org.uk

Sold with 125 year lease, peppercorn ground rent and service charge £411 PA. Perfect Investment Opportunity – AST Rent of £10,200, giving gross yield of 10.20%

The property comes with the potential of a right to park for one vehicle at the carpark at the rear of the building.

Please note that there is currently a tenant in the property and the photos that we are advertising are before the tenant was in occupation.

Floorplans For Avishayes Road, Chard, Somerset, TA20
EPC For Avishayes Road, Chard, Somerset, TA20
Arrange a viewing for Avishayes Road, Chard, Somerset, TA20

For further details on this property please call us on:
01460 68222

Arrange Viewing