2

2 bed End of Terrace - For Sale
Robins Court, Chard, Somerset, TA20
£200,000



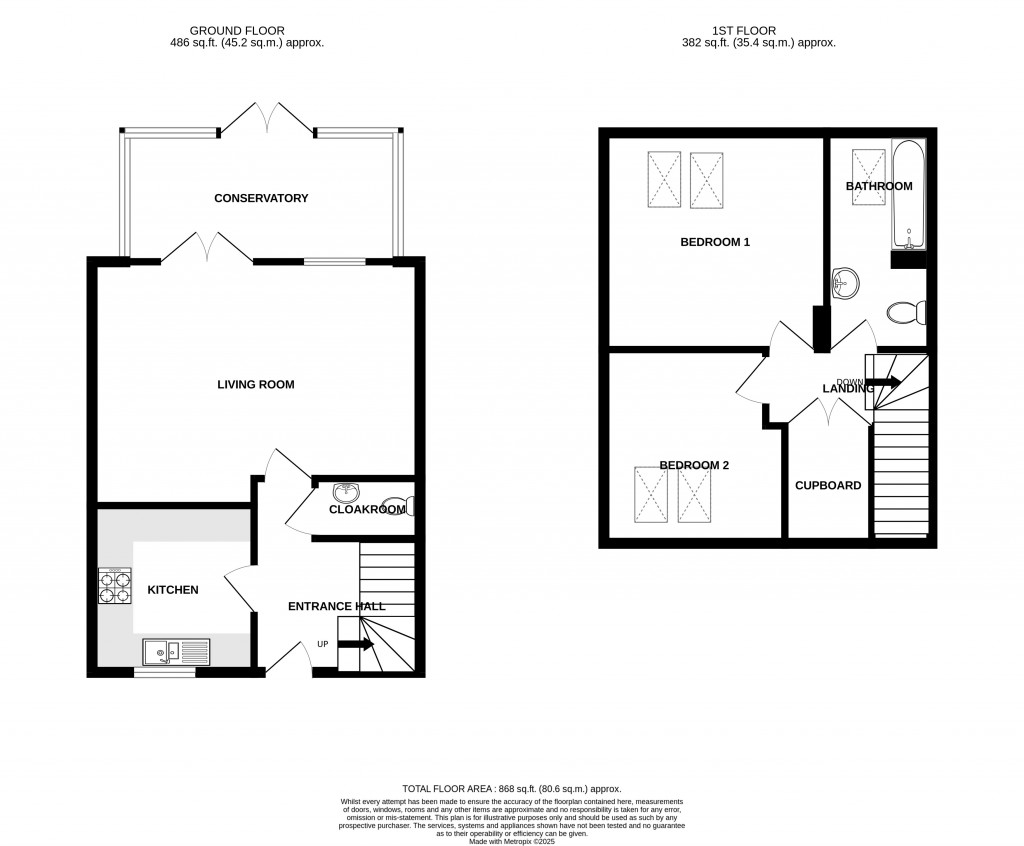
Entrance Hall    Via a double glazed door, house electrics, radiator, stairs rising to first floor, doors to

Kitchen 8'11" x 8'8" (2.72m x 2.64m). Front aspect uPVC double glazed window, a range of base and wall mounted until with roll edge work surface and tiled splash backs, stainless steel 1 and 1/12 sink and drainer, wall mounted Remha boiler, fitted appliances include Whirlpool cooker with extractor hood over, fridge and dishwasher.

Living Room 17'11" (5.46m) x 13'1" (4m) at the maximum measurements. Rear aspect double glazed window and French doors, radiator.

Conservatory 14'7" x6'11" (4.45m x2.1m). Brick built base with uPVC double glazed windows and roof.

Landing    Double door storage cupboard with hanging rail, doors to

Bedroom 1 12' x 11'3" (3.66m x 3.43m). Rear aspect wooden Velux windows and radiator.

Bedroom 2 8'2" (2.5m) 9'3" (2.82m) at the maximum measurements. Front aspect wooden Velux window, radiator.

Bathroom    Rear aspect wooden Velux window, white suite comparing bath with shower over, pedestal wash hand basin, close couple wc with tiled splash backs, heated towel rail and vanity light.

Outside    To the front of the property is stone chipped garden with established plants and shrubs with pathway leading to the front door and store cupboard.

The rear garden is all enclosed with low maintenance astro turf, patio seating areas and established trees and shrubs. A pedestrian gate gives access to the parking area.

Property Information    Services
Mains gas, electric, water and drainage

Broadband and Mobile
Superfast Broadband is available in this area and mobile signal should be available from all four major providers outdoors and three major providers indoors. Information supplied by ofcom.org.uk

Floorplans For Robins Court, Chard, Somerset, TA20
EPC For Robins Court, Chard, Somerset, TA20
Arrange a viewing for Robins Court, Chard, Somerset, TA20

For further details on this property please call us on:
01460 68222

Arrange Viewing